ГлавнаяКаталог Торговая площадь — Щербакова ул., 20

Щербакова ул., 20, 101.20 м 2

119 000 ₽
Площадь: 101.20м 2 Этаж 1 из 17
1 175 ₽/м 2
Тюленёв Артём
Специалист
или оставьте ваш номер,
и я перезвоню в течение 5 минут
Нажимая на кнопку, вы даете своё согласие на обработку персональных данных и соглашаетесь с политикой конфиденциальности
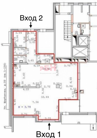
Предлагается в аренду просторное помещение 101.2 м2 расположено на улице Щербакова, район Чкаловский.
Без комиссии для арендатора.

- Помещение расположено на первом этаже жилого дома в Чкаловском районе;
- Развитая инфраструктура, в этом же доме располагаются: "Сбербанк", "INVITRO", "Строительный двор", студия красоты, кафе, пункты выдачи и др. коммерческие организации;
- напротив находится остановка общественного транспорта «Щербакова» (траллейбус);
- 2 отдельных входа, центральный вход с улицы Щербакова;
- Возможность установки вывески на фасаде;
- Общая площадь 101,2;
- Планировка: кабинетно-открытая;
- Пол - керамогранит, стены - окрашены;
- Установлена и разведена вытяжка;
- Высота потолков 3,7 м;
- Мощность: 50 кВт;
- Доступ в помещение 24/7;
- Парковка у здания;

Сдаваемое помещение подойдет под: аптека, учебный центр, общепит, стоматология, салон красоты, офис компании, и др;

Стоимость аренды: 119 000 руб/мес (1176 руб/кв.м.) ,
Коммунальные платежи не включены в стоимость и оплачиваются отдельно

Более подробную информацию уточняйте у наших специалистов.
------------------------------------------------------
"Регион Бизнес Недвижимость".
Коммерческая недвижимость.
Без комиссии для арендаторов.
Арт. 19306194
Расположение

Щербакова ул., 20

Похожие объекты

Посмотреть другие объявления в этой категории