Щербакова ул., 20, 101.20 м 2

22 500 000 ₽
Площадь: 101.20м 2 Этаж 1 из 11
222 332 ₽/м 2
Тюленёв Артём
Специалист
или оставьте ваш номер,
и я перезвоню в течение 5 минут
Нажимая на кнопку, вы даете своё согласие на обработку персональных данных и соглашаетесь с политикой конфиденциальности
Предлагается в покупку помещение свободного назначения на первой линии ул. Щербакова;

Без комиссии для покупателей.

- Объект расположен на 1-м этаже 11-этажного жилого дома;
- по соседству расположены: банк "СберБанк", "Строительный двор", "INVITRO", центр грудничкового плавания, Нотариус, Студия красоты, пункты выдачи, частный детский сад;
- большой автомобильный и проходящий-пешеходный трафик, хорошая транспортная доступность остановка транспорта "Щербакова";
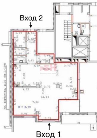
- общая площадь 101,2 кв.м;
- отдельный вход со стороны ул. Щербакова, запасной вход со двора;
- год постройки 2011;
- высота потолков - 3,7м;
- электрическая мощность - 50 кВт;
- по помещению разведена приточно-вытяжная система
- канализационная труба и мокрые точки выведены ближе к центру помещения;
- состояние в торговом зале: пол - керамогранит, потолок - "армстронг", стены - покраска;
- наземная парковка общая + шлагбаум (пульт предоставляется);

Помещение подойдет под офис, магазин непродовольственных товаров, общепит, производство, разные услуги и др.;

Стоимость продажи: 22 500 000 рублей

Более подробную информацию уточняйте у наших специалистов.
--------------------------------------------------------
"Регион Бизнес Недвижимость".
Коммерческая недвижимость.
Без комиссии для покупателей.
Арт. 127147308
Расположение

Щербакова ул., 20

Похожие объекты

Посмотреть другие объявления в этой категории