ГлавнаяГотовый арендный бизнес — Розы Люксембург ул., 12

Розы Люксембург ул., 12,
391.10 м2

22 000 000 руб.

56251 руб./м2

Следить за ценой


Площадь: 391.10 м2

Окупаемость, лет: 21


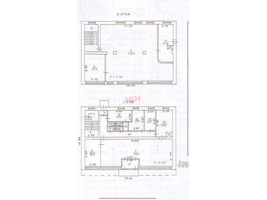
ПРЕДЛАГАЕТСЯ К ПРОДАЖЕ ОСЗ общей площадью 391,1 кв.м.

Без комиссии для покупателей.

- расположено в центральной части г. Полевской, в окружении плотной жилой застройки, рядом с автовокзалом;
- высокий автомобильный и пешеходный трафик;
- удобный подъезд, хорошая транспортная доступность, рядом остановки общественного транспорта;
- возможность размещения рекламной вывески на фасаде;
- развитая инфраструктура, рядом расположены м-н Магнит, Красное и Белое, Пивоман;
- хорошо просматривается с автомобильной дороги;
- возможность размещения рекламной вывески на фасаде;
- зона разгрузки. Возможность подъезда грузовых автомобилей;
- открытая планировка, возможность зонирования;
- высота потолков: 3,3 м;
- электроснабжение: разрешённая мощность 40 кВт;
- пол: бетонный;
- стены: окрашены;
- потолок: армстронг;
- коммуникации: центральные;
- отопление: газовое
- свободная парковка на 20 м/м;

Идеально подходит под: Медицинский центр, Магазин (продовольственные и непродовольственные товары). Караоке-бар, лаундж-бар. Хостел. Офис, салон красоты, аптеку и многое другое

Стоимость продажи 22 000 000 рублей (56 251 руб./кв.м.)

Более подробную информацию уточняйте у наших специалистов.
------------------------------------------------------
"Регион Бизнес Недвижимость"
Коммерческая недвижимость
Без комиссии для покупателей
Арт. 96478956

Специалист

Перетокина Анна

+7 996 186 65 63

или оставьте ваш номер,
и я перезвоню в течение 5 минут

Согласен с Политикой конфинденциальности и с Политикой оператора в отношении обработки персональных данных

Отправляя заявку вы соглашаетесь на обработку персональных данных

Похожие объекты

Посмотреть другие объявления в этой категории