ГлавнаяГотовый арендный бизнес — Пушкина ул., 2, литера а

Пушкина ул., 2, литера а,
276.10 м2

40 000 000 руб.

144875 руб./м2

Следить за ценой


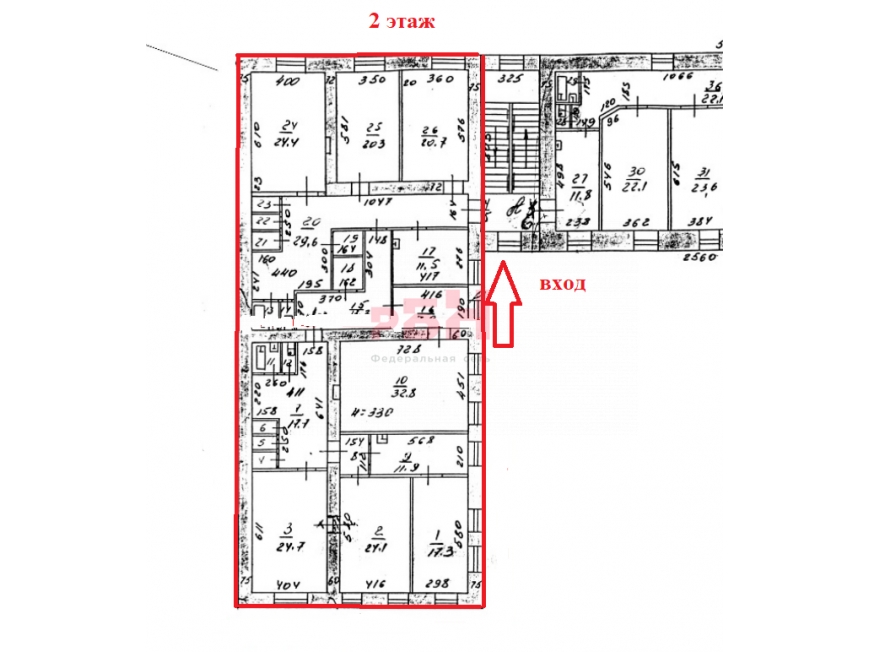
Площадь: 276.10 м2

Окупаемость: по запросу


ПРЕДЛАГАЕТСЯ В ПРОДАЖУ УНИВЕРСАЛЬНОЕ ПОМЕЩЕНИЕ В ЦЕНТРЕ ЕКАТЕРИНБУРГА.

Без комиссии для покупателей.

- Продается помещение свободного назначения площадью 276.1 кв.м;
- Расположено в самом сердце города на одной из центральных улиц-улице Пушкина;
- Хорошая транспортная доступность. Рядом находятся остановки общественного транспорта;
- Развитая инфраструктура, центры деловой активности, рядом гостиница, музеи, места общепита;
- Хороший пешеходный и автомобильный трафик;
- Помещение на 2 этаже;
- Высота помещений 3,5м;
- Отопление, водоснабжение, канализация-центральное;
- Электроснабжение 15 кВт

В данный момент в помещении располагается Хостел. Возможна продажа готового бизнеса.

Стоимость продажи: 40 000 000 рублей
-----------------------------------------------------
"Регион Бизнес Недвижимость".
Коммерческая недвижимость .
Без комиссии для покупателей.
Арт. 95750538

Специалист

Гортовина Яна

+7 996 186 65 63

или оставьте ваш номер,
и я перезвоню в течение 5 минут

Согласен с Политикой конфинденциальности и с Политикой оператора в отношении обработки персональных данных

Отправляя заявку вы соглашаетесь на обработку персональных данных

Похожие объекты

Посмотреть другие объявления в этой категории