ГлавнаяГотовый арендный бизнес — Победы ул, 7

Победы ул, 7,
115.00 м2

9 600 000 руб.

83478 руб./м2

Следить за ценой


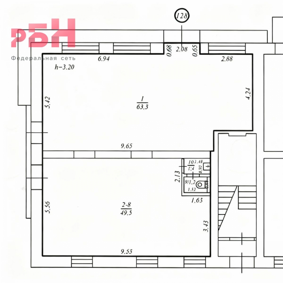
Площадь: 115.00 м2

Окупаемость: по запросу



Продается помещение свободного назначения, площадью 115.00 кв.м, расположенное по адресу: Нефтекамск г, Победы ул, 7

 Продается помещение с арендатором (Сеть магазинов бытовой химии Хозяйка) Договор бессрочный на 11 месяцев с автоматической пролонгацией Арендный поток 95 000р/месяц
Есть ежегодной индексации не более 8%
 9 лет окупаемости после вычета налога 7% и без учета индексации арендной ставки Отличная локация, густонаселенный район города, рядом школы, детские сады, остановки общественного транспорта, в соседних помещениях работают К&Б, Аптеки и другие арендаторы Есть своя парковка. ​​​​​​​1 основной и 2 запасных выхода  Имеется возможность разделить помещение и повысить арендный поток Номер объекта: #5/545701/8379

Специалист

Александр Смирнов

+7 996 186 65 63

или оставьте ваш номер,
и я перезвоню в течение 5 минут

Согласен с Политикой конфинденциальности и с Политикой оператора в отношении обработки персональных данных

Отправляя заявку вы соглашаетесь на обработку персональных данных

Похожие объекты

Посмотреть другие объявления в этой категории